道格拉斯住宅|宛若天作 纯白清新 不染一尘
道格拉斯住宅|宛若天作 纯白清新 不染一尘

Douglas House , Richard Meier
道格拉斯住宅(Douglas House )其设计者是大名鼎鼎的理查德·迈耶(Richard Meier)。

理查德·迈耶是美国建筑师,也是现代建筑中白色派的重要代表。

迈耶的成名代表作史密斯住宅的设计里也表现出他对于自然环境的尊重,同样,道格拉斯住宅也犹如凌波仙子般超凡脱俗,傲然于自然,又融入与自然。

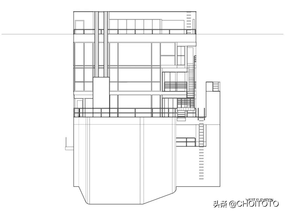
室外的楼梯、高耸的烟囱、横向的顶、透明的玻璃窗、大片框架玻璃、金属的栏杆扶手……构成了白色派作品中较有代表性的道格拉斯住宅。

道格拉斯住宅的西向,是风景优美的密西根湖。

它宛如一艘游艇,屋顶平台则如船上的甲板,仿佛下一秒人们便能畅游于密西根湖上。

陡峭的山壁上,长满了高耸且翠绿的树丛,清澈的湖水,澄蓝的天空,它挺立于大自然之中。

道格拉斯住宅形式纯净,局部处理干净利落、整体条理清楚,然而它也存在着一个麻烦,热烈阳光的午后,道格拉斯就会面临着严重的西晒问题。

道格拉斯住宅在如画的自然风光增添了一道时代的风景线,它宛若天作,纯白清新,且不染一尘。









































下一篇:没有了